
咨詢熱線
400-8306919

官方微信


致力于高科技廠房、科研實驗室的技術咨詢、設計及系統工程承包服務

天昌行簡介

交鑰匙工程案例(CDS及SDS)
中芯國際(北京/深圳)- 6 套 中央 CDS/SDS
臺灣華亞科技(美光)- 12 套 中央SDS

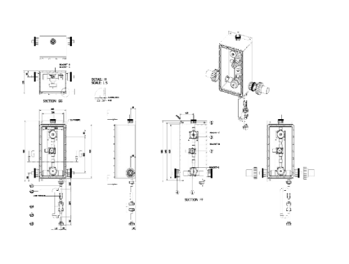
典型直接供應高危化學品系統 – 模組化全3D設計到實體實施
典型直接供應高危化學品系統 – 模組化全3D設計到實體實施
化學品POU VMB多重安全設計 – 壓力測試/ 細節保障全面安全

內含 遠程監控,數據分析,報警分析,視頻聯動,遠程操作指導,知識庫,及遠程維護